🚀 Bald neu: Fair. Transparent. Ohne Provision.
Unser verbessertes Angebot kommt in Kürze!
Zurück
Reihenendhaus in Feldrandlage
Verkauf
24848
Kropp
339.000€
Zum PDF Exposé ->
Alle 26 Bilder anzeigen
Information
Objektnummer:
88320707-1
Postleitzahl:
24848
Stadt:
Kropp
Anzahl Zimmer:
5
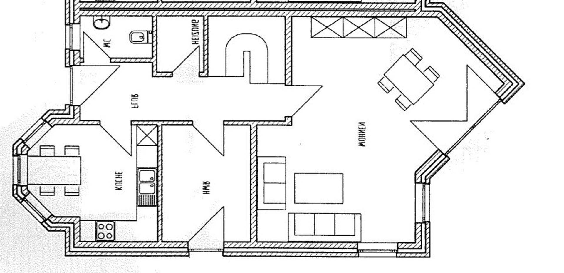
Wohnfläche:
120
Anzahl Schlafzimmer:
2
Energieausweis:
liegt zur Besichtigung vor
Baujahr:
1999
Badezimmer:
1
Objektart:
Haus
Status:
Verkauf
Stellplätze:
3
Beschreibung
Sie interessieren sich für diese Immobilie?
Ich bestätige, die
Datenschutzbestimmungen
gelesen und akzeptiert zu haben.
Nachricht senden