Zurück
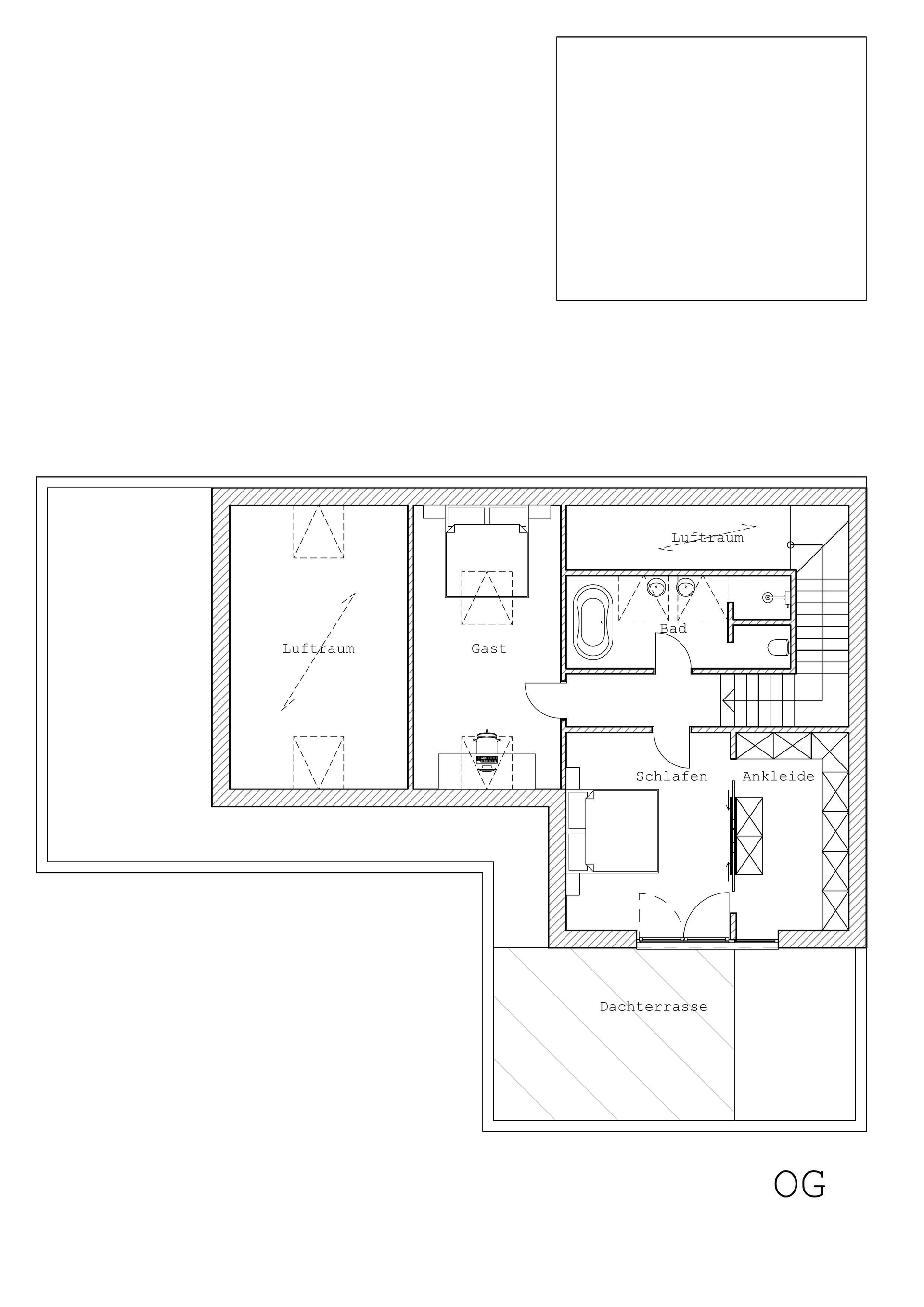
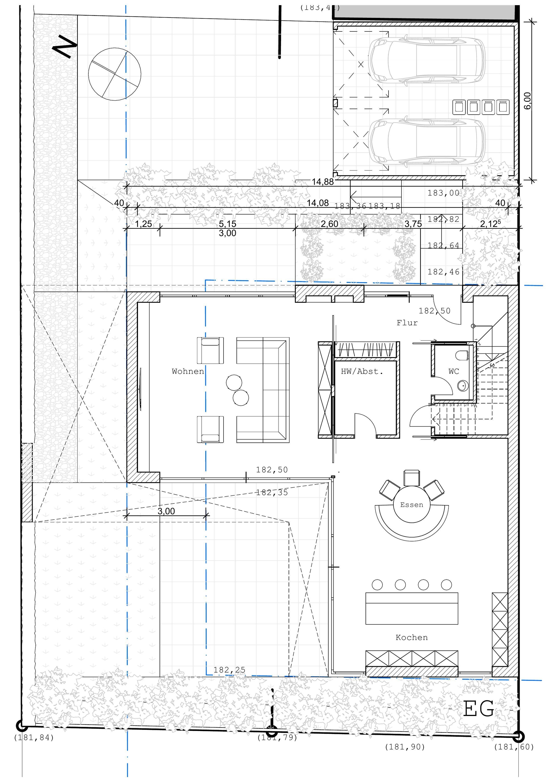
Sofort bebaubares Grundstück mit fertiger Baugenehmigung und Projektierung für freistehendes EFH
Verkauf
42489
Wülfrath
249.000€
Zum PDF Exposé ->
Alle 7 Bilder anzeigen
Information
Objektnummer:
UUjrrFJjkI-3
Postleitzahl:
42489
Stadt:
Wülfrath
Energieausweis:
liegt zur Besichtigung vor
Objektart:
Grundstück
Status:
Verkauf
Beschreibung
Besonderheiten der Immobilie
Lage der Immobilie
Sie interessieren sich für diese Immobilie?
Ich bestätige, die
Datenschutzbestimmungen
gelesen und akzeptiert zu haben.
Nachricht senden